電動車窗系統的概述
為了使駕駛員更加集中精力駕車,方便駕駛員及乘客的操作,許多汽車采用了電動車窗。駕駛員和乘客只需操縱車窗升降開關,就可以使汽車門窗玻璃自動上升或者下降。
電動車窗功能:
1、依靠電機升降車窗玻璃
2、能夠自動上升與下降
3、防夾功能
所謂防夾玻璃升降器,是指當玻璃上升時,如果在上升區域內有人體某部位或物件時會立即反轉(下降)一段距離后停止,以防止夾傷乘客。
目前,防夾玻璃升降器從防夾功能上分主要有兩類:接觸式和非接觸式。接觸式指當電動車窗機構感觸到有異物在玻璃上,才會自動停止玻璃上升工作;
4、與其它系統共同作用實現汽車人性化
電動車窗系統的組成
電動車窗系統由車窗、車窗升降器、電動機、控制開關等組成。
①大部分汽車的車窗舉升器都采用非常靈活的連桿來舉升車窗玻璃,同時保持其處于水平狀態。 將小型的電動機連接到一個蝸輪和幾個其他直齒圓柱齒輪,以產成較大的齒輪減速比,從而提供足以升起車窗的扭矩。
②電動車窗的一個重要功能是電動車窗不能強制打開——傳動結構中的蝸輪支持這一功能。 由于蝸桿和齒輪之間存在接觸角度,因此很多蝸輪都具有自鎖功能。 蝸桿可旋轉齒輪,但齒輪不能旋轉蝸桿,齒之間的摩擦致使齒輪結合。
③連桿帶有一個長臂,此長臂與支撐車窗底部的桿相連。 臂的末端在車窗升高時可以滑入桿的凹槽中。 在桿的另一端是一個大盤,盤上刻有輪齒,電機可轉動與這些齒接合的齒輪。配有手動車窗的汽車通常使用相同的連桿,但不是由電機轉動齒輪,而是由
搖臂把手轉動齒輪。 在下一節中,我們將了解某些電動車窗所具有的一些靈活功能,包括兒童鎖定功能和自動上升功能。
電動車窗系統的工作原理
電動車窗開關的控制原理
控制開關一般有兩套,一套為總開關,裝在儀表板或駕駛員側的車門上,另一套為分開關,分別安裝在每個車窗上。由于所有車窗的電動機都要通過總開關搭鐵,所以如果總開關斷開,分開關就不能起作用
1、主開關的控制原理(別克君威為例)
2、分開關的控制原理
當開關打到不同 位置時,
電源從不同 的觸點引入,控制電 機不同的工作模式。
3、電動
機的控制原理
由于電動車窗的動作是雙向(升降)的,所 以改變通過電動機的電流方向,從而控制電動機的轉動方向。
4、電動車窗
系統的工作原理
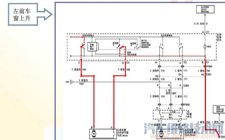
電動車窗系統的控制電路圖 電路分析(別克君威)








(出自WWW.qсWxjs.com )