寶馬X5車窗無一鍵升降 電動車窗玻璃升降工作原理(附電路圖)
01故障現象一輛行駛里程約9.3萬km的2013年寶馬X5。用戶反映:該車的左前門車窗玻璃升降異常,其他車窗玻璃升降則正常。
02故障診斷接車后首先驗證用戶反映的故障現象,試車發現左前車窗玻璃無一鍵升降,操作控制左前升降按鈕時,只能升降一下,多操作幾次,CID顯示防夾保護功能失效。其他車窗功能正常。電動車窗升降機的功能由多個控制單元實現,腳部空間模塊控制前部車窗升降機,后部車窗升降機(如果已安裝的話)由接線盒電子裝置控制,參與的控制單元通過車輛中的數據總線通信。這些控制單元由接線盒供電。腳部空間模塊和接線盒電子裝置控制車窗升降機驅動裝置。在腳部空間模塊內安裝有前部車窗升降電機的繼電器。為了防夾功能無故障地起作用,必須對車窗升降機進行初始化設置。沒有防夾功能的車窗升降機不能進行初始化設置。如果車窗能夠在自動運行模式下(開窗付費功能)關閉,則一定存在防夾功能。在車窗升降機驅動裝置中有一些輔助傳感器,通過它們能夠探測車窗位置。自動運行模式“打開車窗”不需要任何防夾功能。在對車窗升降機進行初始化設置時,控制單元學習兩個參數:
·上部極限位置(車窗升降機標準化設置)
·打開和關閉的電流特性曲線(特性曲線學習)
下列情況下必須對車窗升降機進行初始化設置:
·在更新車窗升降機驅動裝置后
·在車窗密封條上或車窗升降機機械機構上進行維修工作后
·在更新控制單元或對其重新編程后
有功能故障時,例如點動關閉功能(自動運行模式)不可用,不能便捷關閉,車窗在不存在防夾功能的情況下換向。
為了能夠無故障地進行初始化設置,必須滿足下列前提條件:
·車輛停止
·存在足夠的蓄電池電壓,如有必要,連接充電器
·總線端KL. R或總線端KL.15已接通
·所有車門都已關閉
初始化設置可以通過各個車門上的操作開關或通過駕駛員側車門上的車窗升降機開關組進行。此外,初始化設置還可以通過服務功能“車窗升降機初始化設置”進行。
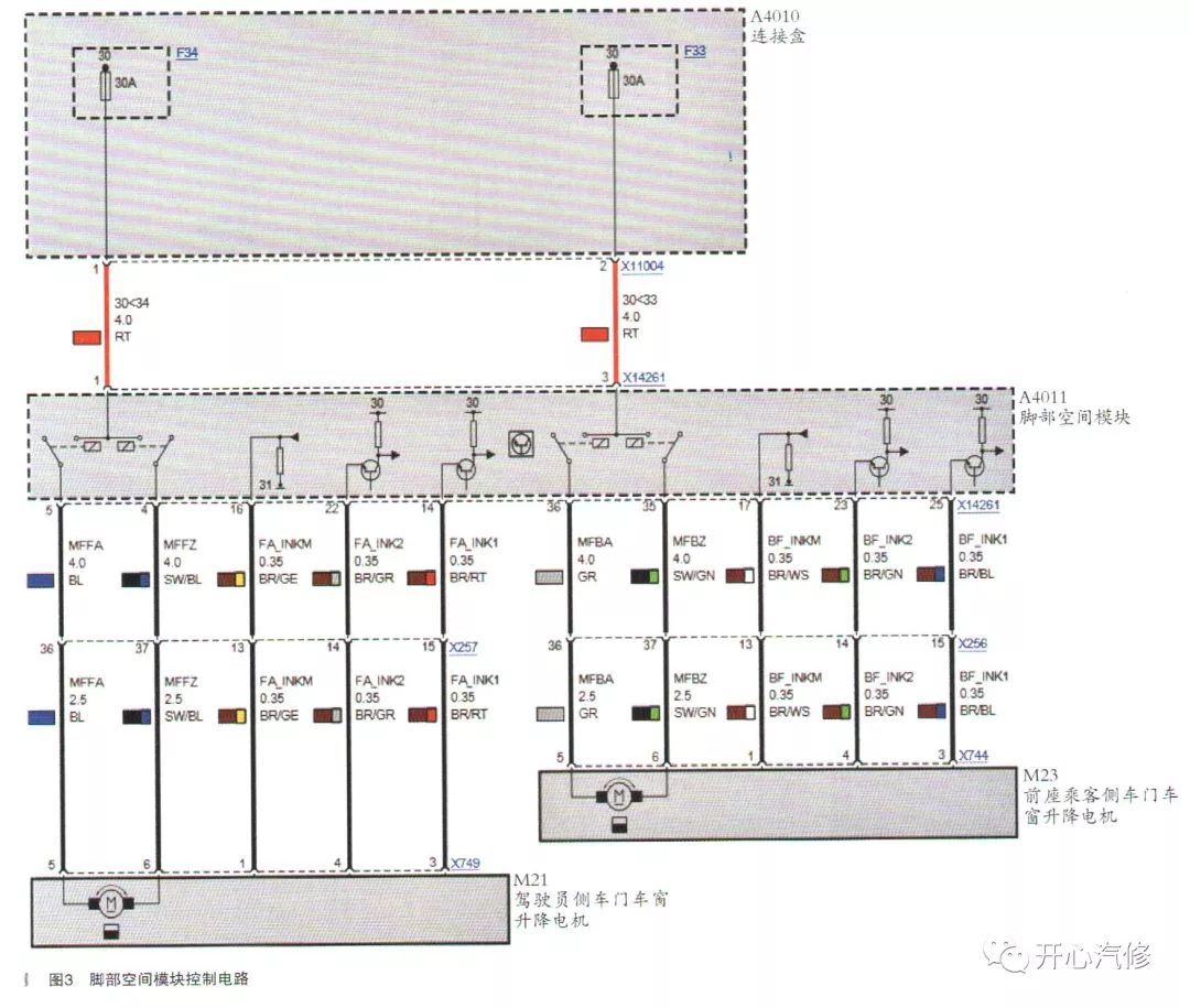
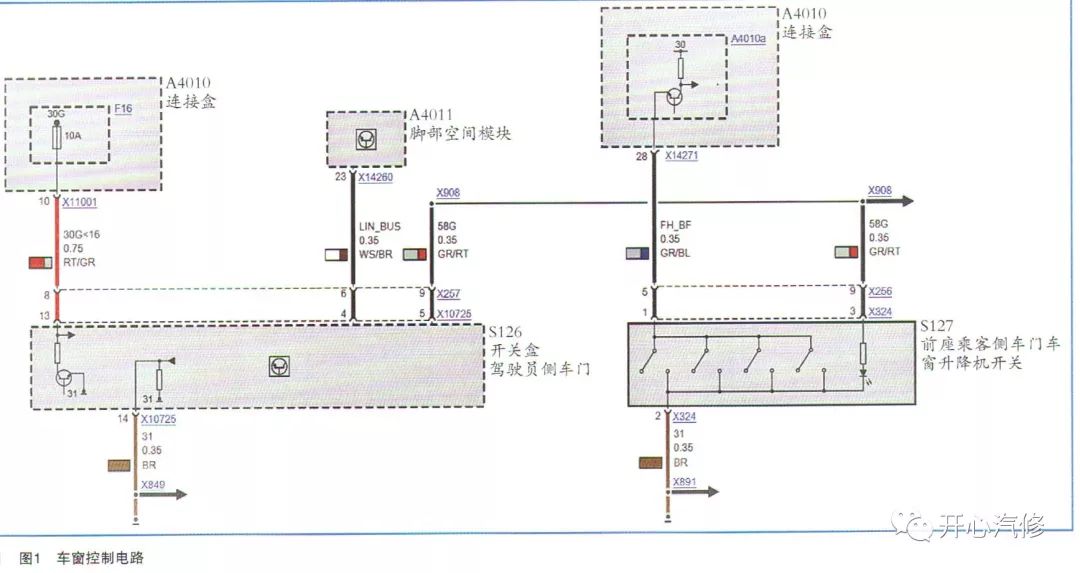
連接ISID進行診斷,未發現相關故障碼。拆卸左前車窗升降機開關組有腐蝕的痕跡,分析插頭進水,對針腳進行處理,裝上故障依舊。找來相同車型功能正常的開關組,裝上故障依舊。用手上下拉動車窗玻璃,發現抽上抽下間隙很大。拆除玻璃升降機檢查,未有明顯損壞的地方。找來正常功能的玻璃升降電機對調測試,故障依舊。找來功能正常的FRM腳步空間模塊換上,故障依舊。調出車窗玻璃的控制電路圖,如圖1所示。
相關文章
- 精彩推薦
-
- 最近發表





